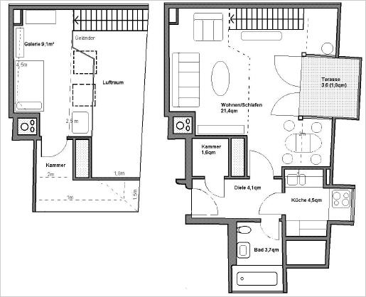
Ausstattung
Allgemeines zur Wohnung:
Komplett mit Fliesen ausgelegt, Fußbodenheizung, Funkthermostat für Wohnzimmer, Haus mit Lift, inkl. Kellerabteil, Tiefgaragenplatz über Hausverwaltung möglich, ca. 46 qm Wohnfläche (nach DIN), Nutzfläche ca. 10 qm mehr.
Wohnzimmer:
Fußbodenheizung, neue hellgraue Fliesen (nicht auf den Fotos), Dachterrasse von 3 Seiten Glas zur Wohnung, Dachterrassentür über komplette Frontseite weit öffenbar, Treppe zur Galerie mit Holz, Geländer aus weiß gestrichenem Metall,
Dachterasse:
rot gefliest, Außenbeleuchtung möglich, von innen schaltbar
Galerie:
2 Dachflächenfenster mit innen angebrachten Rollladen, Fenster sind kippbar, Fußbodenheizung, gleiche hellgraue Fliesen wie im unteren Wohnbereich, Treppe mit Holzstufen
Küche:
Komplett mit ALNO Küche Fronten in POP BLAU und Arbeitsfläche Trumalingrau ausgestattet, Stellplatz für Waschmaschine (Anschluss vorhanden), Herd mit Ceranfeld, Seiten inzwischen mit Alu verkleidet (nicht auf Foto), hoher Kühlschrank, weiß / rote Fliesen diagonal verlegt, durchgängig vom Flur, Fussbodenheizung
Flur:
Fliesen wie in Küche rot weis abwechselnd in Diagonale verlegt
Bad:
weiße Fliesen mit leicht roter Strutur, Wanne mit Dusche, Waschbecken, Fussbodenheizung. Fenster müssen mit Gardine oder Folie mit Sichtschutz ausgestattet werden
Kammer unten:
Fliesen grau
Kammer oben:
Fliesen grau, um die Ecke rel. niedrig, d.h. nur als Stauraum nutzbar
Kellerabteil:
Kleines mit Metallgitter abgetrenntes Kellerabteil von ca. 1,5 * 1,5 m.
Zugang zum Keller nur mit Hausschlüssel
| Klicken Sie hier, um zur Galerie zu gelangen. |
Raumplan
zurück zu » Trudering
zurück zu » Wohnung
zurück zu » Hompage
weiter zu » Mietvertrag
weiter zu » Anfrage














